Продам двухуровневую квартиру 110м
Обзор№ - 2908928
| Стоимость | 10 900 000 |
|---|---|
| Отделка | Без отделки |
| Количество комнат | 1 |
| Площадь | 110 |
| Площадь кухни | 20 |
| Жилая площадь | 80 |
| Этаж | 4 |
| Этажность | 4 |
| Балкон | Балкон |
| Коммунальные услуги включены | Нет |
| Доля в квартире | Нет |
| Онлайн показ | могу провести |
| Право собственности | Посредник |
Адрес
| Населенный пункт | Королёв |
|---|---|
| Район города | микрорайон Болшево |
| Улица | проезд Бурковский |
В избранное Продам двухуровневую квартиру 110м
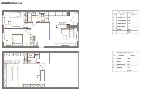
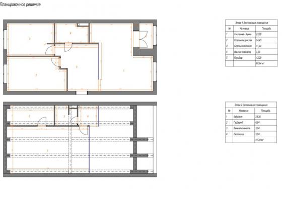
Продам двухуровневую квартиру на 4 этаже кирпичного дома.
Рядом ЖД Валентиновка (будущее МЦД). Школы магазины, дет сад.
По полу и по документам 66 метров(плюс балкон) , по 2 окна на каждую сторону ,
110 это с достройкой 2 го этажа , можем сами сделать ремонт - это ещё плюс 2.5 млн и 6 мес.,
ПРОДАЖА СРОЧНО -торг уместен























