ЖК «Городские Истории», 1
Обзор№ - 193629
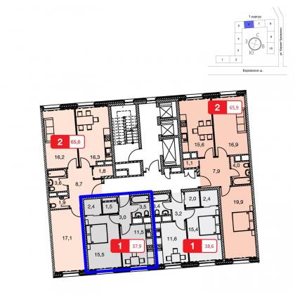
| Стоимость | 5 720 777 |
|---|---|
| Количество комнат | 23 |
| Площадь | 37.9 |
| Этаж | 21 |
| Этажность | 23 |
В избранное ЖК «Городские Истории», 1
Продается 2-х комнатная квартира м. ВДНХ ул. Проспект Мира д. 188 Б к 1. Квартира располагается 55-ом этаже 57-ми этажного монолитного дома. Квартира свободной планировки. Рядом располагаются 7-мь детских садов и 3-и общеобразовательные школы. Подземный паркинг занимает 3-и этажа. В ЖК "Триколор" располагаются супермаркеты, салон красоты,фитнес и дошкольные детские учреждения. Площадь квартиры 109,7м.







